Noticia archivada en la categoría: Día a día | Publicada el 7 febrero del 2014.
Esta entrada también está disponible en: Inglés
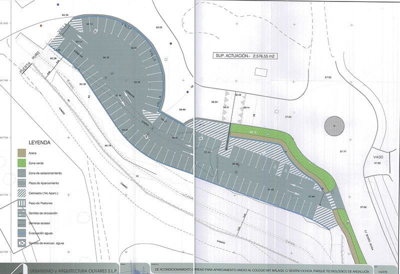
MIT School sigue creciendo, y dado que aumenta el número de alumnos, también lo hacen las instalaciones. Así pues, para dar cabida al cada vez mayor volumen de automóviles que se concentran a la entrada y la salida del Colegio, MIT construirá un nuevo párking. Las obras comenzarán tan pronto como el Ayuntamiento de Málaga otorgue las licencias oportunas.
Puede consultar los planos del aparcamiento aquí.
Español
English 